Tunnel Chambers
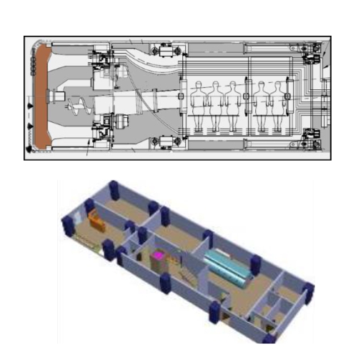
Tunnel Construction Works require TBM (tunnel boring machine) to drill tunnel. Special purpose Hyperbaric chambers are used inside the TBM. Hyperbaric chamber is used in TBM applications as a transfer under pressure unit (TUP).
Tunnel Construction Works require TBM (tunnel boring machine) to drill tunnel. Special purpose Hyperbaric chambers are used inside the TBM. Hyperbaric chamber is used in TBM applications as a transfer under pressure unit (TUP).
Mining Rescue / Escape Chambers For mining operations there is a requirement that at certain distances there must be a rescue chamber. In case of a mine gas accident or a danger alarm, miners can escape to these chambers. Chambers are gas tight and accommadates food, water and other living Essentials for 36 hours or…
Application & use The hypobaric chamber supports training of personnel in altitude indoctrination flights. This includes pressure breathing exercises, combination flights, rapid decompression, oxygen equipment use, and emergency procedures. Applications extend to high altitude physiological problems in hypoxia, hyperventilation, and mechanical effects of trapped gas, gas evolution out of solution and stress interactions. Rapid decompression,…